在超高压电压等级中,三相变压器线圈的中性点直接接地,为大电流接地系统,在高压66KV、110KV、220KV电压等级中三相变压器线圈的中性点需经变压器中性点接地保护装置称为大电流接地系统,在中压6KV、10KV、35KV电压等级中三相变压器线圈的中性点可以经过消弧线圈接地、电阻接地、或不接地统称为小电流接地系统。
JH-PJB型中性点接地保护装置是专为66KV、110KV、220KV、变压器线圈中性点接地而生产的一种装置。在电力系统故障中,非对称三相故障可以分解出正序分量,负序分量和零序分量,而变压器线圈中性点接地通道就是零序电流途径通道,零序保护装置是根据零序电压和零序电流大小有选择地切除故障变压器。JH-PJB型中性点接地保护装置就是以实现变压器中性点接地或不接地运行两种不同的运行方式设计的。从而避免变压器中性点因受雷电冲击和故障引起电压升高、对变压器绝缘造成损害。此产品可以广泛应用于电力、冶金、化工、煤炭行业。
二、采用标准
GB156-93 标准电压
GB/T 1985—89 交流高压隔离开关和接地开关
DL/T486 交流高压隔离开关和接地开关订货技术条件
DL/T593 高压开关设备的共用订货技术导则
DL/T615 交流高压断路器参数选用导则
DL/T620 交流电气装置的过电压保护和绝缘配合
GB/T 311—1997 高压输变电设备的绝缘配合
GB/T 775—1987 绝缘子试验方法
GB/T 5582—1993 高压电力设备外绝缘污秽等级
GB/T 7354—1987 局部放电测量
GB11032—2000 交流无间隙金属氧化物避雷器
GB/T 11604—1989高压电器设备天线电干扰测量方法
GB/T 16927—1997高电压试验技术
GB/T 763交流高压电器在长期工作时发热
GB191-1990 包装储运图示标志
GB/T 2900-1989 电工名词术语避雷器
三、使用环境条件
3.1 安装地点:户外。
3.2 产品结构:组合式柱上设备
3.3 周围空气温度:
最高温度:+70℃
最低温度:-45℃
最大日温差:25K
日照强度:0.1W/cm2
3.4 海拔高度:5500m
3.5 最大风速:35m/s
3.6 地震烈度: 8度
3.6 地震烈度: 8度
水平加速度:0.3g
垂直加速度:0.15g
3.7 污秽等级: III级(2.8KV/cm)
3.8 覆冰厚度: 10mm
四、型号说明
五、技术数据
|
产品 型号 |
变压器额 定电压
kV |
变压器中性点 耐受电压 |
隔离开关 |
氧化锌避雷器 |
放电 间隙 |
电流互感器 |
||||||
|
雷电全波和截波耐受电压 kV (峰值) |
1min 工频 kV (有效值) |
额定电流
A |
操动机构 |
额定 电压 kV (有效值) |
持续运行电压 kV (有效值) |
直流1mA 参考 电压 kV 不小于 |
8/20µs雷电冲击电流残压 kV (峰值) |
工频放电电压 kV ±10% (有效值) |
型式 |
变比 |
||
|
JH-PJB-110 |
110 |
250 |
95 |
400 |
CS8-5 (手动)或 CJ6 (电动) |
72 |
58 |
103 |
186 |
83 |
环氧树脂浇注全封闭支柱式 10kV |
100/5 200/5 300/5 400/5 500/5 600/5 |
|
JH-PJB-220 |
220 |
400 |
200 |
400 |
144 |
116 |
205 |
320 |
166 |
|||
六、外形及安装尺寸
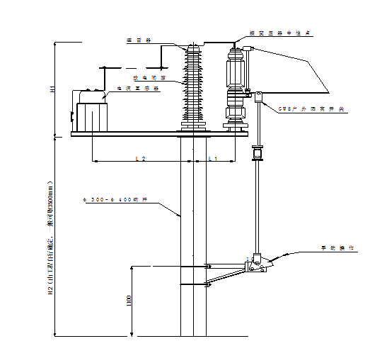
图1 产品外形
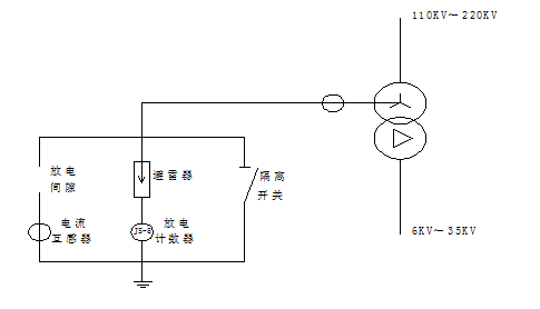
图4 中性点接地保护装置原理接线示意图
七、运输及储存7.1 JH-PJB型变压器中性点接地保护装置装箱运输。
7.2运输中应防雨、轻放、向上直立、防碰。
7.3存放时应保持直立状态,存放地点环境温度在—40℃~+55℃范围内,不允许有易燃易爆性气体及化学物质。
八、安装要求
8.1 设备可利用底座的4个安装孔进行吊装,不得把吊绳捆绑在瓷柱上,防止损坏设备。
8.2 固定操作机构的槽钢支架和由操作机构到隔离开关导电杆转轴的钢管,不在本装置的供货范围内。均由安装单位现场制作,长度、尺寸现场确定。
8.3 设备应可靠接地。
8.4 产品的外形及尺寸以实际供货为准。
v8.5 隔离开关的安装可参照附件GW8系列中性点隔离开关的安装说明进行。
九、使用须知
9.1变压器中性点电流互感器一般装设在变压器出线套管上,不包括在本装置内。本装置接线图如图4所示。
9.2订货时应告知变压器额定电压,电流互感器变比,隔离开关额定电流、操作机构形式,氧化锌避雷器额定电压等参数。当未具体指定时,将按本说明书技术数据标准配置交货。
9.3电流互感器二次侧设0.5/10P两个次级。供测量保护使用。不用时应将其短路。
9.4连接到变压器中性点的导线截面和型式由用户决定。


